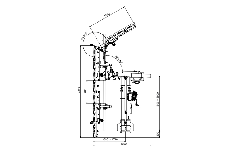
Orizzonti FRUIT-D je profesionalni disk-trimer za mašinsku rezidbu intenzivnih voćnjaka u špaliru i modernih maslinjaka. Koristi vertikalne (6–9 diskova) i horizontalne rezne diskove (2–3), sa diskovima Ø40 cm ojačanim tvrdim karbidom, koji čisto režu grane prečnika 5–8 cm.
Radna glava je postavljena na ram pod uglom od 45° radi bolje stabilnosti, a pogon diskova obavlja se hidromotorima preko remenica i kaiševa. Horizontalna letva može imati automatske senzore za rad ispod protivgradne mreže.
FRUIT-D nudi hidraulično podešavanje položaja, kontrolu brzine diskova i upravljanje preko joystick-a u kabini. Potreban protok je najmanje 50 l/min, uz preporuku nezavisne hidraulične grupe.
Montira se frontalno na traktore 70–100 hp.
Orizzonti mašine su modularne i imaju više varijanti, pa osnovna cena ne uključuje sve obavezne komponente (nosače, dodatne elemente ili pogonske sklopove). Kontaktirajte nas kako bismo zajedno odabrali kompletnu konfiguraciju kompatibilnu sa vašim traktorom.
Dodatna oprema:
| Specifikacija nije definisana |
Ne, mi smo direktni uvoznici. Svu robu nabavljamo od renomiranih proizvođača i nudimo vam najbolji kvalitet po konkurentnim cenama.
Ne, prodajemo isključivo nove mašine i delove.
Ne radimo zamenu staro za novo. Naša ponuda obuhvata samo prodaju novih proizvoda.
Da, obezbeđujemo servis i rezervne delove za sve mašine koje nudimo.

Komentari