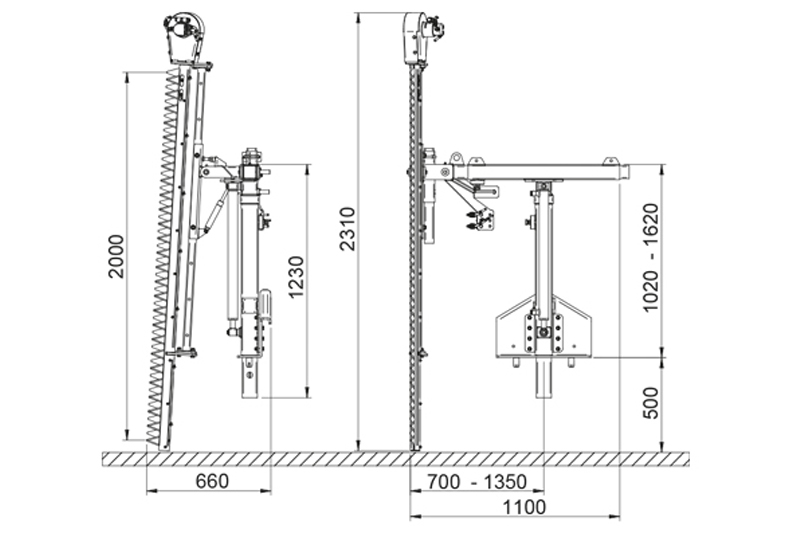
Orizzonti ECO/200 je osnovni, ali pouzdan trimer za mehaničko orezivanje vinograda, namenjen proizvođačima koji žele jednostavno i dugotrajno rešenje. Montira se na prednji fiksni stub traktora radi maksimalne stabilnosti.
Opremljen je vertikalnom dvoručnom kosom dužine 200 cm, pogodnom za ravničarske vinograde. Sve funkcije su mehaničke, osim hidrauličnog podizanja stuba. Letva ima gasni amortizer koji smanjuje vibracije i obezbeđuje čist rez.
Zahvaljujući robusnoj i jednostavnoj konstrukciji, ECO/200 je idealan za vinogradare kojima je potrebna pouzdana mašina sa minimalnim održavanjem i širokom kompatibilnošću sa traktorima.
Orizzonti mašine su modularne i imaju više varijanti, pa osnovna cena ne uključuje sve obavezne komponente (nosače, dodatne elemente ili pogonske sklopove). Kontaktirajte nas kako bismo zajedno odabrali kompletnu konfiguraciju kompatibilnu sa vašim traktorom.
Dodatna oprema:
| Specifikacija nije definisana |
Ne, mi smo direktni uvoznici. Svu robu nabavljamo od renomiranih proizvođača i nudimo vam najbolji kvalitet po konkurentnim cenama.
Ne, prodajemo isključivo nove mašine i delove.
Ne radimo zamenu staro za novo. Naša ponuda obuhvata samo prodaju novih proizvoda.
Da, obezbeđujemo servis i rezervne delove za sve mašine koje nudimo.

Komentari