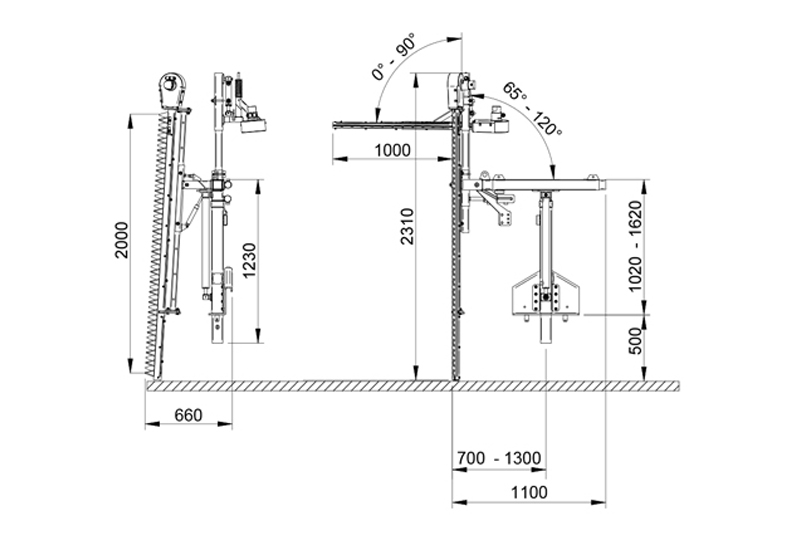
Orizzonti CFT 300 je profesionalna mašina za mehaničko orezivanje vinograda, namenjena srednje velikim i velikim ravničarskim zasadima. Montira se na prednji fiksni stub traktora radi maksimalne stabilnosti.
Opremljena je vertikalnom kosom i gornjom topping letvom, koja ima anti-udarni sistem i mogućnost naginjanja 0–90° za precizno orezivanje uz stubove i konstrukcije. Vertikalna kosa poseduje gasni amortizer koji smanjuje vibracije i obezbeđuje čist rez.
Hidraulični sistem sa 4 funkcije omogućava precizno pozicioniranje letvi, a po zahtevu je dostupno elektro-hidraulično joystick upravljanje (obavezno kod traktora sa kabinom prema EC standardima).
Minimalni zahtevi: 180 bar, 20 L/min protoka ulja i traktor od najmanje 40 HP.
Orizzonti mašine su modularne i imaju više varijanti, pa osnovna cena ne uključuje sve obavezne komponente (nosače, dodatne elemente ili pogonske sklopove). Kontaktirajte nas kako bismo zajedno odabrali kompletnu konfiguraciju kompatibilnu sa vašim traktorom.
Dodatna oprema
| Specifikacija nije definisana |
Ne, mi smo direktni uvoznici. Svu robu nabavljamo od renomiranih proizvođača i nudimo vam najbolji kvalitet po konkurentnim cenama.
Ne, prodajemo isključivo nove mašine i delove.
Ne radimo zamenu staro za novo. Naša ponuda obuhvata samo prodaju novih proizvoda.
Da, obezbeđujemo servis i rezervne delove za sve mašine koje nudimo.

Komentari